宅基地北面靠着马路,该怎么设计图纸?
这个房子的布局就不错,
照顾了马路上的面子,也藏着不少生活细节。
话不多说,优点如下:
1.入户体面:北门廊+玄关,隔绝马路噪音与灰尘,归家仪式感拉满。
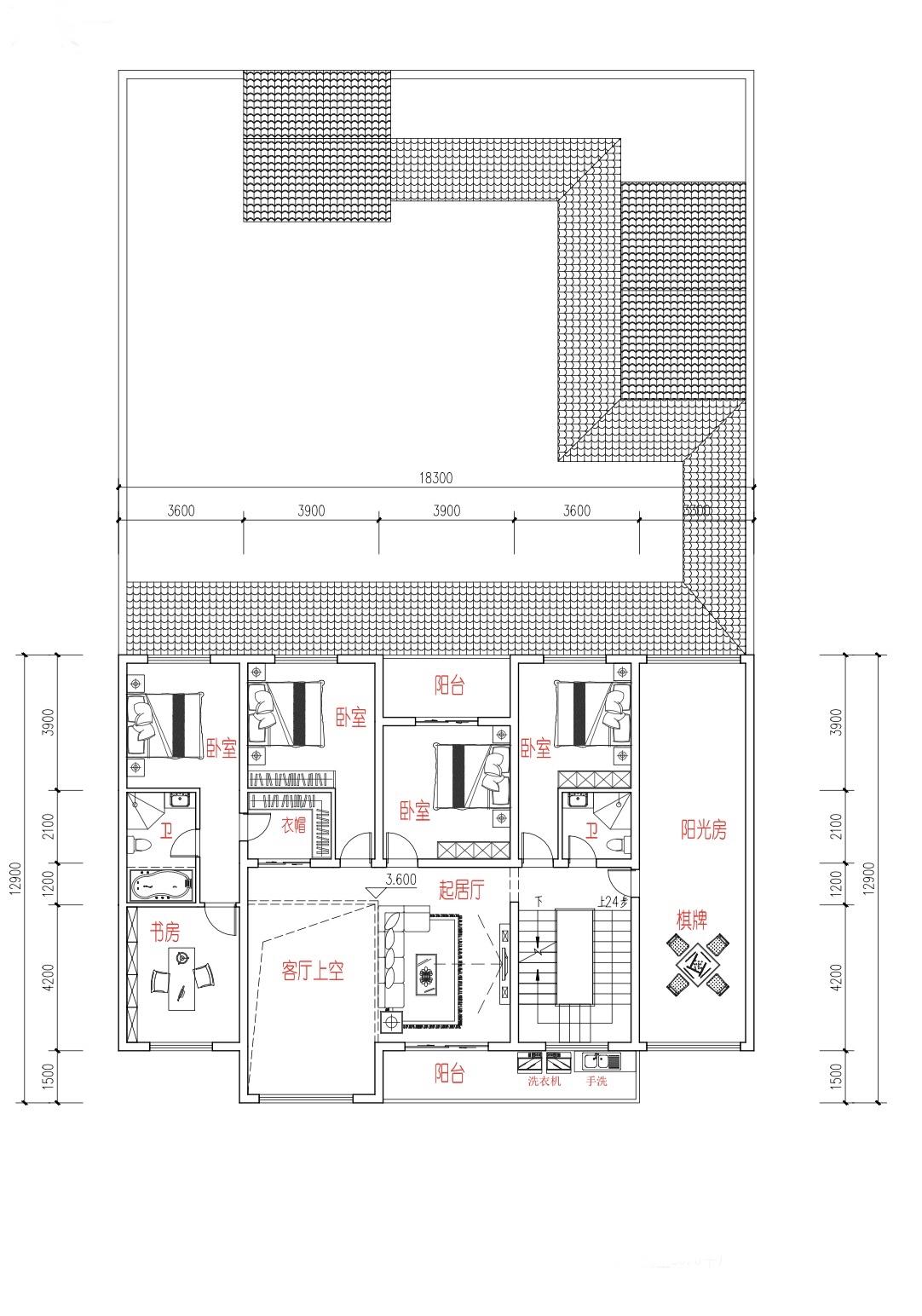
2.南向采光拉满:6个卧室全朝南,客厅挑空,阳光能铺满每一个角落。
3.功能齐全:一层有茶室、双车位,二层带阳光房、棋牌室,老人孩子都有专属空间。
4.花园私密:南面花园+泳池,避开马路喧嚣,是独处会客的好地方。
没有完美图纸,缺点也有:
1.北向噪音干扰:客厅、楼梯紧挨着马路,开窗时容易受车流噪音影响。
2.二层通风稍弱:部分卧室被阳台和走廊包围,自然对流不足。
3.车位局促:双车位并排,开门空间窄,大车进出不方便。
看到了缺点,就需要改进,建议如下:
1.给北向墙面加隔音窗,把马路噪音挡在门外。
2.把二层部分阳台改成可开启窗,增强通风。
3.车位预留宽一点,给家人留足开门空间。
要我说:房子要向阳,生活才不慌,南向布局是核心,别让马路抢了阳光的主场。
要不要我帮你把这份优缺点整理成施工优化清单,方便你和施工队对接?
农村自建房

